広く平坦な土地に平屋を建てませんか
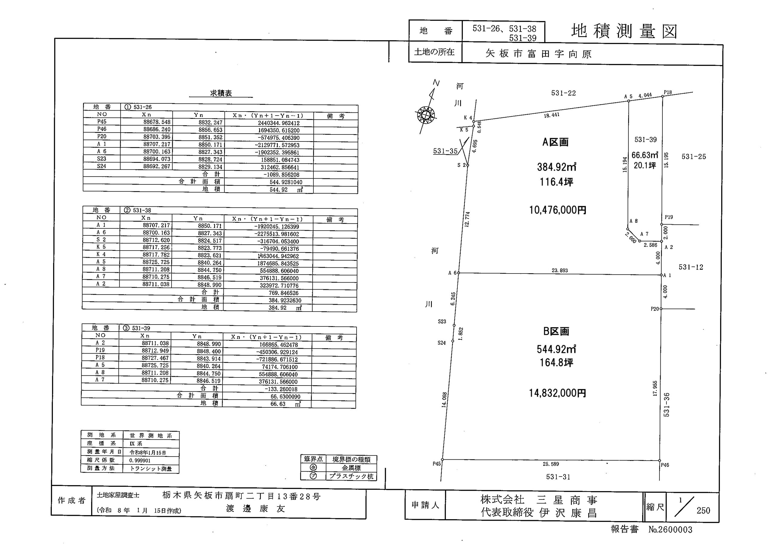
土地・売地 平坦地116.4坪、164.8坪/建築条件なし
平屋を建てたい方、広い土地を希望いる方に向いています。
コンビニ・スーパー・東小学校
に近く 生活に便利な場所です。
南側に公園があり陽当たりを確保できます。
2区画販売中
矢板駅まで1.1km、 車での通勤や電車での通学などにも。
ピッコロ保育園近く、中央通りから少し入った静かな場所です。
国道4号や県道30号へのなど、両幹線道路へのアクセスやも良く、矢板駅まで1.1kmの徒歩圏内です。
車での通勤や電車での通学などにも。
Google MAP
Location : data
管理No.売地260203
所在地矢板市富田531-26、-38
価格9万円/坪
地目宅 地
用途地域第1種住居地域
Area-volume
建ぺい率60%
容積率200%
土地面積384.92m2/116.4坪
544.92m2/164.8坪
Others
設備水道:公営水道引込可
電気:東京電力
ガス:プロパン
排水:公共下水道引込可
備考都市計画:都市計画区域内
接道状況:開発道路
道路幅員:6.0m
受益者負担金/水道加入金
法第22条区域
権利所有権
取引形態売 主

この物件を





